🔥40% Off Ends Soon | Available 24/7🔥

00
Days
00
Hours
00
Minutes
00
Seconds

JLB4237 Plan

Like this plan but need changes?
We can add, remove, or modify anything — garage, basement, layout, rooms, walls, windows, and more. Modifications are free with purchase.

Janelle Schaller
My husband and I couldn’t be happier with JL Barndominium Artists! They provided permit-ready plans that were approved the first time, and the builder-friendly blueprints were easy for our builder to work with. The first draft was ready within a day, and the process was stress-free with unlimited revisions to perfect every detail. They also worked with our budget to deliver a cost-effective, custom design. Our home was completed a year ago, and we couldn’t be more excited with how it turned out! Here are the photos of our finished home.
Olivia Miller
Our builder had zero issues with the plans! JLB Artists provided clear, detailed blueprints that made construction smooth and hassle-free—we couldn’t be happier with how easy they made the process!
Isabella Brown
Our permit was approved with no issues! JL Barndominium Artists provided detailed, code-compliant plans, making the process seamless.
Matthew Rodriguez
JL Barndominium Artists made the entire process so easy! From start to finish, they were responsive, helpful, and ensured everything was exactly how we wanted. Designing our home was truly stress-free!
Abigail Williams
My husband and I wanted a great design without overspending, and JL Barndominium Artists delivered! Their plans were budget-friendly without sacrificing quality, making our dream home a reality.

Get the exact plan as shown. No changes.

$2,970 (was $4,950) — flat pricing

What you’ll get:

Limited Spots Monthly

Like the plan but need changes? We can add, remove, or modify anything — garage, basement, layout, rooms, walls, windows, and more. Modifications are free with purchase.

$2,970 (was $4,950) — flat pricing

What you’ll get:

Limited Spots Monthly

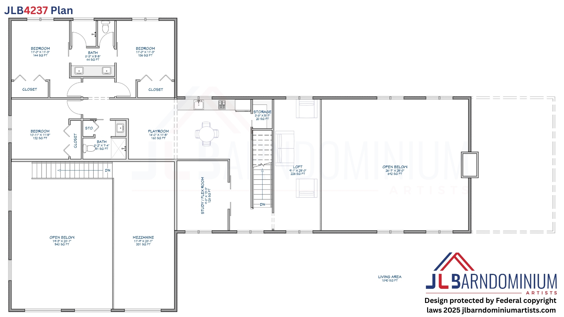
A luxurious farmhouse that combines elegance, space, and versatility — meet Plan JLB4237.

This two-story home offers 4,237 sq. ft. of heated living space with 4 bedrooms, 3.5 baths, and exceptional features like a pantry, office, flex room, laundry, safe room, playroom, mezzanine, and loft. Enjoy 1,472 sq. ft. of porches wrapping around the home and a garage and shop (871 sq. ft.) for added convenience.

With 10-ft ceilings on the first floor and 9-ft upstairs, this plan delivers the perfect blend of southern charm, open living, and modern sophistication.

Plan Specifications
Total Area (Porches + Garage + Living): 6,580 sq. ft. (104’ W x 56’ L)
Heated Living Area: 4,237 sq. ft. (88’ W x 41’ L)
Porch Area: 1,472 sq. ft. (Around 8’, Front 13’, Side 16’)
Garage and Shop Area: 871 sq. ft. (32’ W x 28’7” L)
Bedrooms: 4
Full Bathrooms: 3
Half Bathroom: 1
Ceiling Height: 10 ft. first floor, 9 ft. second floor
Floors: 2 floors

Buy this plan today and enjoy free modifications until it fits your vision perfectly!

Limited Spots Monthly

Some of the most common fears and questions we hear from families are:
What if we don’t like the plan? What if it doesn’t fit our lifestyle or land? What if the builder or the local building department asks for changes later?

We know exactly why you’re asking these questions — because you don’t want to end up stuck, forced to accept something you don’t love, or dealing with expensive changes later on. And you shouldn’t have to.

We completely understand those concerns — building a home is a huge investment, and for many families, it’s a once-in-a-lifetime decision. That’s why our process is designed to protect your time, your budget, and your peace of mind.

We break the work into phases. The first phase is only the floor plan — the core of your home. We offer unlimited revisions, no matter how long it takes. Some clients finalize in a couple of days, others work with us for months. And we gladly support both.

From a business perspective, spending six months revising a plan isn’t always profitable. But from a service and trust standpoint, it means everything to us. We’ve had clients tell us they felt like they received far more than what they paid for — and that’s exactly how it should be. Some even try to offer us a tip at the end, but our system doesn’t allow it — and that’s okay. We’re here to get it right, not to squeeze more from you.

At the same time, we know many families are trying to move fast — to break ground quickly, line up contractors, or meet deadlines. That’s why we start immediately once your details are in. Most clients receive their first draft within 1–2 days, and once the layout is approved, we deliver the full plan set just a few days later. Fast, without cutting corners.

While other companies usually take 10 days to over a month to deliver a first draft — and sometimes months for final blueprints — we work differently.

We understand why that happens. Designing a home isn’t easy, and it takes time to get everything right. But we’ve made a big investment in the right technology, the right team, and a focused process that allows us to work both fast and with care.

We also limit the number of projects we accept at one time. That’s key. It allows our team to stay focused on quality — and truly support each client, especially those who need daily revisions or ongoing adjustments. In fact, each designer here only works with 1–3 clients at a time, while in many companies, a single designer might be juggling 30 clients at once. That’s why other firms often take weeks or months to send even a first draft.

We chose a different path — one that’s built for speed, attention, and real collaboration. And we believe that shows in everything we deliver.

Even after final delivery, if your builder, engineer, or county requests any edits, we make those updates fast and free of charge. You will never be left stuck.

That’s how we work — with full transparency, real support, and a commitment to your peace of mind, from day one to done.

Limited Spots Monthly for quality and speed

See How Families Across the U.S. Turned Our Plans Into Real Homes

Each photo shows the original plan, the completed build, and feedback from the families who trusted us to design it — real homes, real results, and real reviews proving our plans work perfectly on site.

Limited Spots Monthly for quality and speed

Trusted by Thousands of Families

Watch brief, no-fluff clips from real families who used our plans. See what helped them get fast builder sign-off and stay on schedule—then judge if we’re the right fit for you.

Play Video
Play Video
Play Video
Play Video
Play Video
Play Video
Play Video

Limited Spots Monthly for quality and speed

Our Step-by-Step Process

1

Payment

Choose the package that fits your needs and complete the payment through our secure payment system. You can also select optional add-ons if you need any extra services. If you’re unsure about something, contact us first so we can guide you.

2

Project Details

After payment, you’ll receive a receipt, and a dedicated expert from our team will email you to request project details such as sketches, inspiration photos, and specific requirements.

3

First Draft in 1–2 Days

Once we have your project details, our team will begin working on your design immediately. Expect the first draft to be delivered within 1-2 days.

4

Revisions and Feedback

We offer unlimited revisions. You can review the draft and request changes. We’ll update the design and send a new draft for your review. This feedback loop continues until you are 100%  satisfied with the final design.

5

Finalize the Plans

Once you’re FULLY satisfied with the design and give the green light to proceed, we finalize the plans and deliver the complete blueprints within the specified timeframe of your chosen package.

6

Ongoing Support

Even after you receive the final blueprints, we continue to offer free revisions. If there’s anything you’d like to adjust or if changes are required by your builder or local building department, we’ll make those corrections at no additional cost.

Limited Spots Monthly for quality and speed

We’re excited to share Mrs. Johnson’s story from Georgia. She started with a simple hand-drawn sketch of her dream home — and we turned it into a clear home plans. Using our plans, her builder brought that vision to life.

Ms. Johnson’s Original Sketch

Set of Plans We Provided

Cover Sheet
Floor Plan and Basement Plan
Site Plan
Roof Plan
Electrical Plans
Plumbing Plans
HVAC Design

We provided load reports, but they are not included here due to their extensive length (147 pages). However, they are available upon request.

Elevations
Interior Elevations
Ceiling Plans
Cross Sections
Cabinet Schedules
Door & Window Schedules
3D Floor Plan Renderings
3D Interior Renderings
3D Exterior Renderings

Ms. Johnson’s Completed Home

Congratulations to Ms. Johnson and her builder! With the approved plans, they brought the design to life. Below are photos of the finished home — a perfect reflection of her original vision.

Limited Spots Monthly for quality and speed

Here’s a real example from Mr. Soravin and Ms. Natalie in California, who shared their ideas and inspiration with us. We turned them into a detailed set of plans and 3D renderings.

Cover Sheet

Site Plan

First and Second Floor Plans
Foundation Plan
Electrical Plans
Plumbing Plans
Roof Plan
Roof Framing Plan
HVAC Design

We provided load reports, but they are not included here due to their extensive length (153 pages). However, they are available upon request.

Elevations
Interior Elevations
Cross Sections
Cabinet Schedules
Door & Window Schedules
Details Drawings
3D Floor Plan Renderings
3D Interior Renderings
3D Exterior Renderings

Limited Spots Monthly for quality and speed

No — while we’re known for our barndominium designs, we also create traditional homes, modern farmhouses, cabins, and custom residential plans of any style. Every design is tailored to your vision and fully build-ready.

Getting started is simple! Choose your preferred package on our website and complete the payment. After checkout, you’ll receive a receipt and an email requesting your project details—such as ideas, sketches, or inspiration photos. From there, we’ll begin working on your design right away.
If you have any questions before getting started, you’re welcome to contact us first and we’ll gladly guide you.

No, we don’t build homes. We specialize in creating custom designs and detailed plans that you can take to your builder.

The timeline depends on your package and project scope. Most clients receive their first draft within 1–2 days after payment, and the final plans are completed within 3–9 days, depending on the package selected.

Yes! We offer unlimited revisions during the design phase. You can review your draft, request changes, and we’ll keep refining the design until you’re completely satisfied.

ChatGPT said:

Yes, absolutely. There are different cases:

If you’d like to make changes because you’ve updated some details or want to perfect your plan — these are free if requested within 30 days after receiving your final blueprints. Each time we send you an updated version, the 30-day window automatically resets, so as long as we’re actively revising together, your revisions remain free.

If we don’t receive any feedback or revision requests for over 30 days after the final blueprints are sent, the project is considered complete, and any new revisions after that can be done for a small flat fee to reopen the 30-day window.

If your builder or local building department requests revisions to correct or adjust something, those updates are always free, even if they’re outside the 30-day window.

Yes, our plans are designed according to the International Residential Code (IRC/IBC), which is the most widely adopted code in the U.S. However, since building codes are enforced locally — and there are thousands of different jurisdictions — a local engineer is required for your project before construction begins.

They will need to review the plans, validate them for your site, and provide any additional structural drawings or details needed for permitting and construction.

We’ll provide a complete, detailed set of plans, and we’re happy to coordinate with your local engineer if any adjustments are needed. If your engineer or local building department requests revisions to correct or adjust something, those updates are always free.

All plans are delivered digitally in PDF format according to the timeframe of your selected package. This provides a fast, easy, and hassle-free process with no shipping or handling required.

No — our prices are flat with no hidden fees or surprises. Everything is clearly listed in your selected package, so you’ll always know exactly what’s included before you pay.

Yes, absolutely. You can add 3D renderings, interior elevations, site plans, or full video walkthroughs at any time as optional add-ons to your package.

Your satisfaction is our priority. Every project includes a 100% Satisfaction Guarantee — we’ll keep refining your design with unlimited revisions until you’re completely happy with the result.

Yes, of course. If you have any questions before getting started, you can contact us directly, and we’ll gladly guide you through the process and help you choose the right package for your project.

Limited Spots Monthly for quality and speed